[今日红塔] 空间叙事,层层有景:品鉴凤麓古城底楼跃层的居住哲学
//观世界深蓝湖景 听澄江府城故事//
凤麓古城·景宁悦府
抚仙湖城市会客厅
在现代居住选择中,当多数视野向上延伸时,有一种方案选择向下连接。位于凤麓古城的景宁悦府的底楼跃层,提供的正是这样一种与庭院直接相连、空间立体分布的居住体验。
●●●
户型进阶:
从134㎡到240㎡的舒展人生
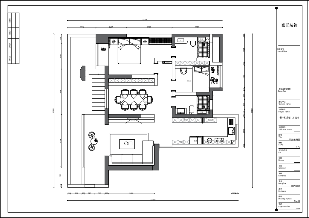
此套底楼跃层,源于对134㎡基础户型的纵深优化,拓展为约240㎡,实现立体的生活格局,每一层、每一区都承载着清晰的功能与情感。
地上层:家庭主要生活区
合理空间布局:作为家的主体部分,这一层设计为三室两厅的舒适格局,客厅敞亮,卧室静谧,阳台揽景,生活井然有序。
高效的动静分区:卧室集中布局,为家人提供静谧的休憩保障,确保专注与放松互不打扰。
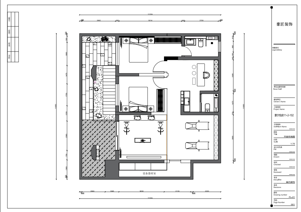
地下层:专属的个性与娱乐天地
多元功能集合地:向下,才是真正的惊喜,负一层可延伸1-2间卧室,更可打造专属的:
茶室、影音室、健身区,成为一个完全根据主人喜好定制的娱乐、休闲和社交空间。
独立的场景营造:由于其相对独立的物理位置,在此进行娱乐活动不会干扰到地面层的静谧。无论是举办一场热烈的派对,还是享受一场沉浸式的电影,都能做到收放自如。
弥补了城市住宅中个性化功能空间的不足。
可按家庭需求随意规划功能
家庭影音室(概念设计方案 仅供参考)
儿童游乐园(概念设计方案 仅供参考)
小型健身室(概念设计方案 仅供参考)
私有庭院:家的户外延伸
底楼跃层的实质价值,在于其附带的私有庭院。这处户外空间自成天地,私密性良好,q且将家的活动范围从室内延展至自然。
这一方庭院能切实承载多样化的家庭需求:
这里可以聚会烧烤,种花养草,孩子玩耍
如果你想要一个户外客厅,那这个庭院就是为你准备的。
对于居住者,它提供了无需外出的宁静角落,可用于阅读、休憩或会客。
(概念设计方案 仅供参考)
从功能上看,庭院可根据家庭兴趣灵活布置。例如,有家庭在此设置了小型攀岩墙,将儿童运动与自然体验相结合。
上下有序:
动静分层的空间艺术
跃层设计的优势在于垂直方向上的功能分区。它通过楼层自然区隔不同性质的生活空间,有效协调家庭生活中的“共享”与“私密”需求。
层次分明,互不干扰:动与静、共享与私密,依楼层自然区隔。
空间感倍增:垂直分布赋予各区域舒展的尺度与视野,避免平层的单调。
多代同居的优雅解答:不同世代成员可享有相对独立的生活模块,又在共享厅院自然交融。
这种立体布局,为多功能、多代际的家庭生活提供了清晰有序的物理框架。
凤麓古城·景宁悦府的底楼跃层,本质上是为重视庭院生活、需要大量功能空间及注重分层居住体验的家庭,提供的一个务实选项。
对于正在寻找能同时满足多代居住、个性爱好及自然连接等复合需求的家庭而言,这是一个值得具体考察的住宅方案。
景宁悦府
它静立于古城一隅,
等待着为你的生活故事,提供最厚重而温暖的稿纸。
免责声明:1、本文所载内容仅供读者参考阅读,不构成对我司具有约束力的要约或最终承诺,最终以正式的商品买卖合同约定及政府规划、批文为准。 2、本资料为邀约邀请,相关内容不排除因政府相关规划、规定及开发商未能控制的原因而发生变化,本公司保留对宣传资料修改的权利,敬请留意最新资料。 3、本资料对项目或产品的介绍,旨是提供相关信息,不意味着本公司对此作出了承诺,买卖双方的权利义务以双方签订的《商品房买卖合同》及附件等协议为准。4、本文编辑推送部分图片部分源自网络,版权归原作者所有,本文只作为引用。如原作者表明身份要求本公司停止使用该素材的,请及时与本公司联系。



















游客